Overview
- Updated On:
- April 24, 2024
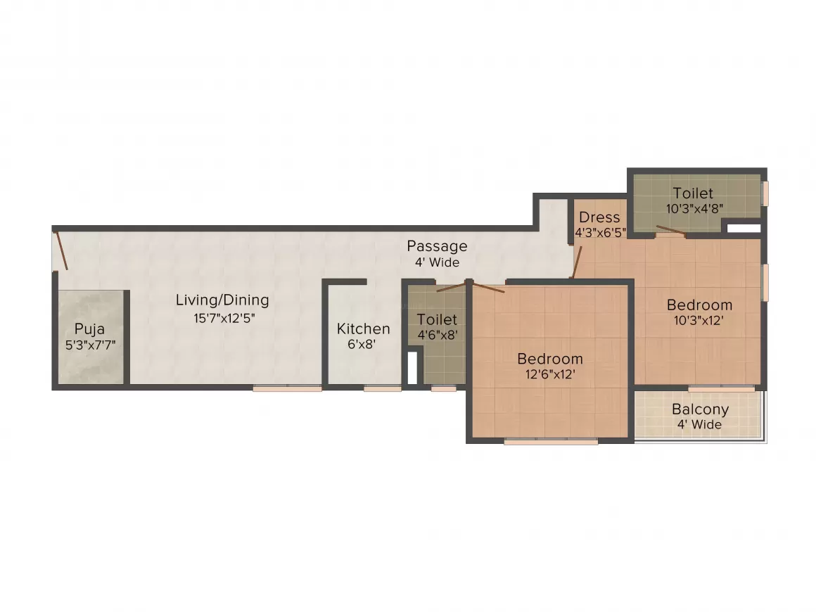
- 2 Bedrooms
Description
In case you are looking for a home in Kolkata that would ensure a lavish and refreshing lifestyle, Active Acres of Ruchi Realty is a project that you might want to check out. The housing complex offers classy residential units, alluring amenities and superb locational benefits. Even if you are a real estate investor and do not plan to use the property personally, a home here would be well worth your money. The lifestyle here, together with the locational advantages, would make it easy to attract profitable returns.
You may choose from 2 BHK and 3 BHK apartments while purchasing a home here. Each of these two formats is available in two different configurations, thus helping homebuyers pick exactly what they need. The homes come with classy interiors, offering an ambience of grandeur and comfort. The builder has strategically designed the floor plans and layouts, such that every home stays well-ventilated. The Active Acres price varies from INR 91.00 lakhs to INR 1.07 crore, making this an attractive opportunity for homebuyers. At a time when Kolkata is witnessing a rise in property rates, such pricing is quite reasonable in a lavish housing project like this one.
Why you should consider Active Acres?
- 3 Tier Security System
- 6 acres of Green Area of the 16.38 Acre property
- AC entrance lobby and High speed elevators in each tower
- Extensive landscaped parks and gardens spread over large open area
- ITF 4 Standard synthetic grass tennis court
- Landscaped water body spread over 10,000 sq.ft.
- Largest project of Central Kolkata
Residing here, you would never feel bored. The project offers a range of sports facilities and other recreational features to keep the residents engaged. These include air hockey, a golf course, a basketball court and more. You may always spend your leisure time in the grand clubhouse, which offers ample entertainment. The well-equipped gymnasium, the swimming pool and other fitness amenities would enable you to keep up with your fitness goals too.
The project lies in a strategic location in Kolkata, offering seamless access to a variety of social amenities. Kolkata is home to numerous esteemed academic institutions, which implies that ensuring quality education for your children would not be an issue. The project also comes with a number of hospitals, parks, shopping malls and other amenities within close proximity. The residents of Active Acres, Kolkata can also enjoy alluring employment and business prospects.
To book your Dream Home please Contact Us. https://backup.getmyghar.com/contact-us/
PROJECT REGISTRATION NO.: HIRA/P/KOL/2020/000778







































